 
					
				$999,988
About this Townhome
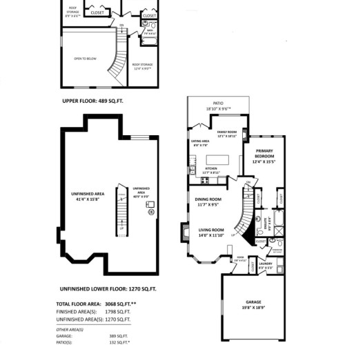
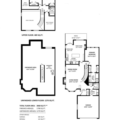
PRICED BELOW ASSESSED VALUE!!Beautiful 3 bedroom 2.5 bath, corner townhouse in sought after MONTROSE. Very rare, large townhouse with soaring 18ft vaulted ceilings in the living room/dining room. Extremely airy & bright floorplan with plenty of windows. Ample sized & well designed kitchen with large central island and plenty of storage. Family room & breakfast area facing privately fenced sizeable back yard. Master bedroom with luxury ensuite is on the main floor with 2 bedrooms upstairs plus bathroom. Plenty of potential in unfinished areas of the home. Huge 2 car side by side garage! Excellent location with future skytrain station extension, a short walk to the Community Center, Walnut Elementary/Fleetwood Secondary school, parks, library, shopping and transit. Open:Sun Oct 5th 12-1:30
Listed by RE/MAX Select Properties.
										 Brought to you by your friendly REALTORS® through the MLS® System,
										courtesy of BrixWork for Realtors for your convenience.
										Brought to you by your friendly REALTORS® through the MLS® System,
										courtesy of BrixWork for Realtors for your convenience.
Disclaimer: This
										representation is based in whole or in part on data generated by the Chilliwack
										& District Real Estate Board, Fraser Valley Real Estate Board or Real Estate
										Board of Greater Vancouver which assumes no responsibility for its accuracy.
									
Features
- MLS®: R3002337
- Type: Townhome
- Building: 8250 158 Street, Surrey
- Bedrooms: 3
- Bathrooms: 3
- Square Feet: 1,798 sqft
- Full Baths: 2
- Half Baths: 1
- Taxes: $4338.98
- Maintenance: $790.77
- Parking: Garage Double, Front Access (2)
- Basement: Full, Unfinished
- Storeys: 2 storeys
- Year Built: 2004
 
						 
						 
						 
						 
						 
						 
						 
						 
						 
						 
						 
						 
						 
						 
						 
						 
						 
						 
						 
						 
						 
						 
						 
						 
						 
						 
						 
						 
						 
						 
						 
						 
						 
						 
						